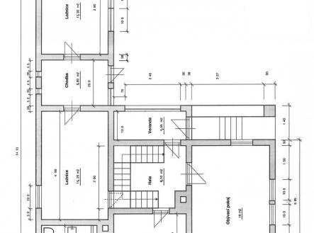
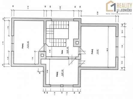
S.N.Í.Ž.E.N.Á. C.E.N.A. Ve výhradním zastoupení pro Vás máme exkluzivní nabídku dvojpodlažní podsklepené srubové stavby určené k rekonstrukci, která se nachází pouhé čtyři kilometry od Náchoda v dosahu přehrady Rozkoš, Dvora Králové se svou Safari Zoologickou zahradou a rekreačních sředisek Orlických hor, Krkonoš a Adrššpašsko-teplických skal ! V obci Řešetova Lhota se nachází na klidném místě velmi zvláštní malebný dřevěný rodinný dům s možností využití jako chalupa a užitnou plochou 146 m² a prostornou terasou, ideální pro relaxaci a grilování v letních dnech. Dům je vhodný i pro početnější rodinu. Tento dům se nachází na pozemku o rozloze 2.187 m², který poskytuje dostatek prostoru pro zahradní party , zahrádkářské aktivity a nabízí i tři samostatně stojící kolny. Sklep domu je vystavěn ze smíšeného zdiva (kámen,cihla,beton) s železobetonovým stropem. Přízemí a patro domu tvoří srubový základ s venkovním obložením (dřevo, izolační panely z hobry a polystyrenu) a dřeveným trámovým stropem. Střecha domu je ze dřeva, pokrytá eternitovými šablonami. V přízemí domu se nachází vstupní veranda s halou, dále kuchyň, obývací pokoj, dvě ložnice, chodba a koupelna s toaletou. V patře pak dětský pokoj, pracovna a ložnice. Součástí domu je také sklep s kotelnou a uhelnou o rozloze 37 m², který nabízí dostatek úložného prostoru. Tato nemovitost je ideální pro rodinné bydlení nebo jako rekreační objekt v krásném a klidném venkovském prostředí. Nezmeškejte tuto jedinečnou nabídku! Na Vaše dotazy odpoví a prohlídky domu Vám velmi rád zprostředkuje realitní makléř Mgr. Radek Procházka
- Zastavěná plocha:829 m2
- Užitná plocha:146 m2
- Plocha parcely:2187 m2
- Druh objektu:dřevěná
- Stav objektu:dobrý
- Počet podlaží v objektu:1
- Umístění objektu:polosamota
- Doprava:silnice; autobus
- Elektřina:Elektro - 230 V; Elektro - 400 V
- Voda:Vodovod
- Topení:Lokální - tuhá paliva
- Plocha zahrady:1358 m2
- Sklep:30 m2
